不動産新着情報
2025/09/21
【新規売出物件 中野区中央4丁目 中古戸建て】の販売を開始致しました。
東京都中野区中央4丁目 中古戸建て
JR総武線「中野」駅まで徒歩7分
東京メトロ丸ノ内線「新中野」駅まで徒歩8分
東京メトロ丸ノ内線「東高円寺」駅まで徒歩15分
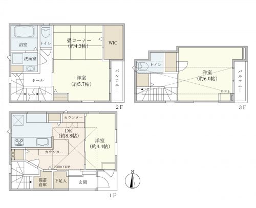
価格:10,580万円
土地面積:56.25㎡(公簿)
建物面積:106.81㎡(実測)
間取り:3SDK+地下室+小屋裏収納 木造3階建て
2023年3月築
現況:空室
取引態様:媒介


L O A D I N G

不動産新着情報
2025/09/21
東京都中野区中央4丁目 中古戸建て
JR総武線「中野」駅まで徒歩7分
東京メトロ丸ノ内線「新中野」駅まで徒歩8分
東京メトロ丸ノ内線「東高円寺」駅まで徒歩15分
価格:10,580万円
土地面積:56.25㎡(公簿)
建物面積:106.81㎡(実測)
間取り:3SDK+地下室+小屋裏収納 木造3階建て
2023年3月築
現況:空室
取引態様:媒介

